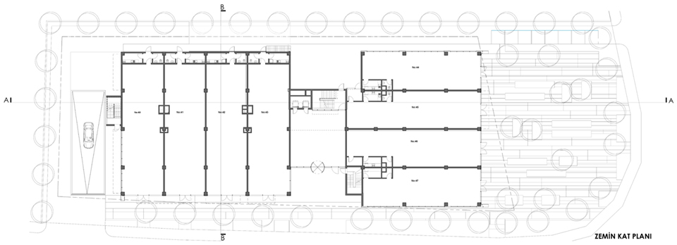
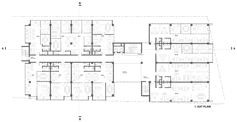
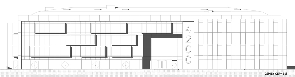
Office 4200

Office 4200 Bursa

Proje Konumu: Bursa

Proje Tarihi: 2009-2010

İşveren: GBC İnşaat

Yapım Yılı: 2011

Toplam İnşaat Alanı : 10.323 m2