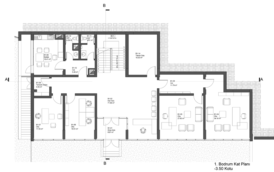
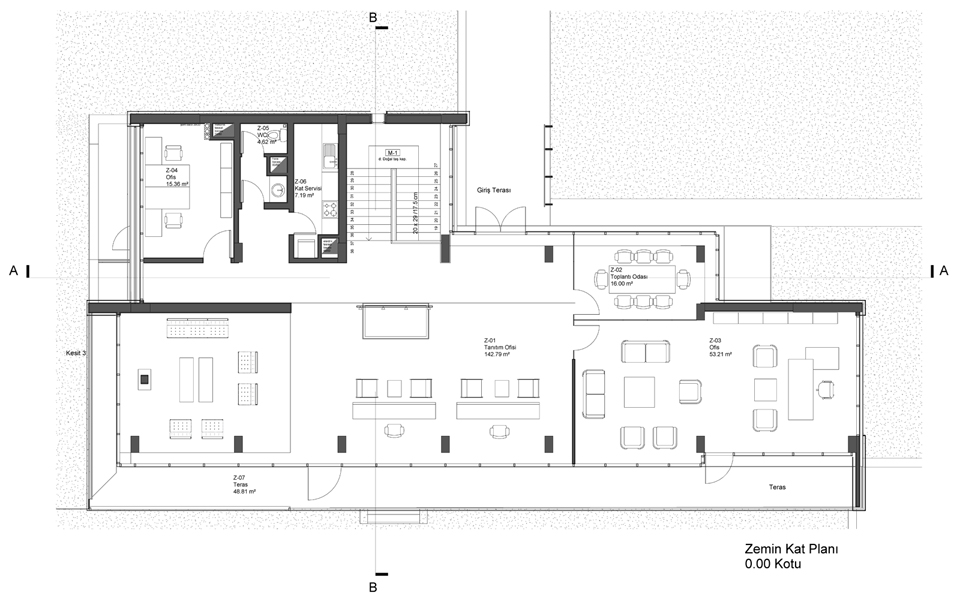
Turkuaz Evleri
Turkuaz Evleri 4. Etap
Proje Konumu:
Nilüfer - BURSA
Proje Tarihi:
2011
Toplam İnşaat Alanı :
927,01 m2
top